Медынь, Ленина 37 Ежедневно с 9:00 — 18:00

График работы

Ежедневно с 9:00 — 18:00

Септик Тверь Аэро 0,5

★ ★ ★ ★ ★
в наличии
Артикул 000378
Количество человекдо 3
Залповый сброс1700 л
Производительность 0.5 m³
Материал полипропилен
Типгоризонтальный
Предназначениедля дома, коттеджа, туалета, дачи, кухни
Цена от
112600112600руб.RUB
Скидка на монтаж до 30%
Бесплатная доставка
Гарантия лучшей цены
Рассрочка до 12 мес.
Септик Тверь Аэро 0,5
Установим за 1
день
Септик Тверь Аэро 0,5
Гарантия от производителя
Септик Тверь Аэро 0,5
Быстрая и удобная
доставка
Септик Тверь Аэро 0,5

Тверь Аэро 0,5 под ключ

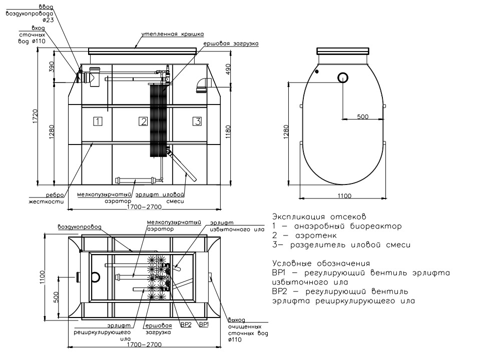
Принцип работы Тверь Аэро 0,5

Основной принцип работы септика «Тверь Аэро» основан на системе аэрации. Эта система работает путем введения кислорода в сточные воды для уменьшения процессов бактериального разложения, что приводит к улучшению качества воды. Кислород подается через ряд труб, которые соединены с воздушным насосом, расположенным снаружи дома. Воздушный насос подает богатый кислородом воздух в сточные воды и помогает расщеплять органические материалы более эффективно, чем традиционные методы.

Преимущества Тверь Аэро 0,5

Основным преимуществом использования септика «Тверь Аэро» является его способность снижать эксплуатационные расходы, связанные с традиционными методами. Как уже упоминалось ранее, этот тип системы использует процесс аэрации, который помогает разлагать органические материалы быстрее и эффективнее, чем традиционные методы. Кроме того, этот тип системы занимает очень мало места по сравнению с другими типами систем, что делает его идеальным для тех, у кого ограниченный двор или тесное пространство вокруг дома. Наконец, этот тип системы уменьшает запахи, связанные с традиционными системами, а также уменьшает накопление осадка в резервуарах, что со временем может привести к засорам и другим проблемам.

Установка Тверь Аэро 0,5

Установка септика «Тверь Аэро» требует определенных знаний и навыков от профессионалов, специализирующихся на этих системах, но она может быть достаточно простой, как только вы поймете, как она работает. Во-первых, вам понадобятся точки доступа для входящих и выходящих сточных вод; обычно они подключаются через водопроводные системы вашего дома или внешние дренажные канавы у линии вашей собственности в зависимости от местных правил и законов, регулирующих системы утилизации отходов в вашем регионе. Кроме того, вам понадобятся точки доступа для подачи богатого кислородом воздуха снаружи дома с помощью воздушного насоса, а также выходы внутри дома, позволяющие отводить очищенные сточные воды обратно в общественную канализацию или частные стоки в зависимости от того, что разрешено в вашем регионе (еще раз проверьте местные правила). Наконец, после установки всех точек доступа все должно быть плотно закрыто, чтобы не было запахов, а также чтобы ничего не попало в загрязненные зоны, например, в источники грунтовых вод у границы вашего участка (проверьте местные правила).

Количество человекдо 3
Залповый сброс1700 л
Производительность 0.5 m³
Материал полипропилен
Типгоризонтальный
Предназначениедля дома, коттеджа, туалета, дачи, кухни

;;Согласен с условиями обработки моих персональных данных.

Похожие товары

Септик Тверь Аэро 0,5

Септик Retro FAST 0.25

Арт. 001619
в наличии
★ ★ ★ ★ ★
Количество человекдо 2
Септик Тверь Аэро 0,5

Септик Практик 3

Арт. 001482
в наличии
★ ★ ★ ★ ★
Количество человекдо 3
Септик Тверь Аэро 0,5

Септик Чисток Аэро 4

Арт. 001638
в наличии
★ ★ ★ ★ ★
Количество человекдо 4
Залповый сброс150 л

Наши работы

РАСЧЕТ СТОИМОСТИ СЕПТИКА ПОД КЛЮЧ ОНЛАЙН
Нужна помощь в подборе септика?
РАСЧЕТ СТОИМОСТИ СЕПТИКА ПОД КЛЮЧ ОНЛАЙН
Заказать со скидкой до 30%

Вы смотрели

Септик Тверь Аэро 0,5

Септик КИТ-8С-1800

Арт. 000790
в наличии
★ ★ ★ ★ ★
Количество человекдо 8
Залповый сброс395 л
Септик Тверь Аэро 0,5

Септик Гринлос Аква 6

Арт. 001200
в наличии
★ ★ ★ ★ ★
Количество человекдо 6
Объем переработки1.2 м³/сутки
Пиковый сброс360 л
Вариант расположения:вертикальный
Септик Тверь Аэро 0,5

Септик GARDA-4-2400-П

Арт. 001945
в наличии
★ ★ ★ ★ ★
Количество человекдо 4
Залповый сброс210 л
Септик Тверь Аэро 0,5

Септик ДЕСЕПТИКОН-1500

Арт. 001258
в наличии
★ ★ ★ ★ ★
Количество человекдо 4
Объем переработки0.8 м³/сутки
Вариант расположения:вертикальный